公司首页
关于我们
产品中心
折叠门系列
大提升推拉门系列
外露式折叠门配件
小提升推拉门系列
新品展示
新闻资讯
人才招聘
联系我们
English
公司首页
关于我们
公司简介
企业文化
荣誉证书
RIECHE Door&Window Hardware Catalogue
RIECHE Pulley Catalogue
RIECHE Sliding Hardware Catalogue
公司宣传片
产品展示
新开发系统
衣柜移门五金系统
其他滑轮/配件
铝合金门窗系统
包塑/ 非标轮子
新品展示
厂房设备
新闻资讯
行业动态
公司新闻
展会新闻
人才招聘
联系我们
联系方式
电子地图
在线留言
联系电话:0574-63886175
产品展示
产品具有静音,长寿命等优点
首 页
>
产品展示
>
衣柜移门五金系统
>
吊门轮五金系统
>
M51071
铝合金门窗系统
衣柜移门五金系统
包塑/ 非标轮子
其他滑轮/配件
新开发系统
提升推拉门300kg
提升推拉门150kg
不锈钢暗装折叠门
推拉折叠门系统
推拉门﹠窗滑轮
纱窗塑钢滑轮
平移门五金系统
挂趟门五金系统
吊门轮五金系统
滑轮
淋浴房滑轮
自动门滑轮
月牙锁
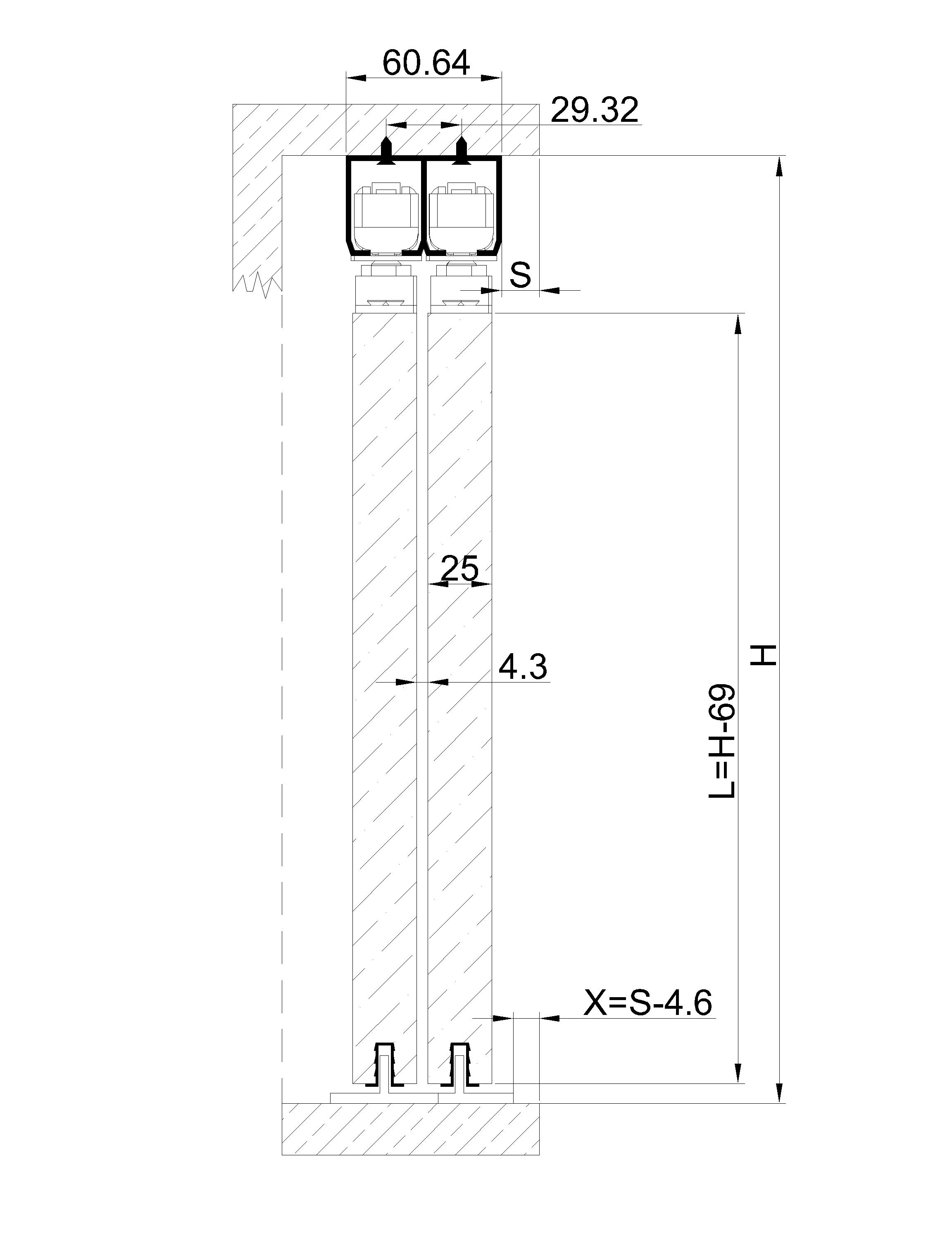
M51071
详情描述
1
返回列表页
1
上一个产品
C-309
下一个产品
M51617
返回顶部
关注锐驰科技公众号获取更多资讯
产品中心
滑轮
新品展示
75重型折叠门
巴士平开门
吊门轮双向阻尼系统
铝合金壁柜门防跳结构
平移门双向阻尼系统
轻型折叠门
推拉密封门系统
无框窗系统
新闻资讯
行业动态
公司新闻
展会新闻
人才招聘
招贤纳士
联系我们
联系方式
版权©2018宁波锐驰科技有限公司
浙ICP备15045853号
技术支持:世创网络